Рисунок к проекту
Drawing for Project
Артём Скворцов
- 14
- 4
-
2012 © www.archigraphics.ru.
Любое использование материалов сайта запрещено без согласования с администрацией сайта.
Техническая поддержка / Support
Author: Artyom Skvortsov
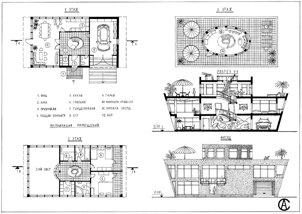
Представляю себе, что я смогу построить такой дом для своей семьи, когда выросту и стану большим архитектором. Сегодня я только учусь и пытаюсь проектировать, убедительно рисовать, чтобы почувствовать стилевые, объемные и композиционные архитектурные решения при проектировании частного дома. При создании проекта я использовал стилевые и композиционные приемы частных вилл Ле Корбюзье. Это эксплуатируемая кровля, овальная лестница которая является центром дома, росписи холла первого этажа в модернистском стиле, большие окна остекления, расположение на участке среди паркового благоустройства и т.д. Мой дом нарисован в духе функционализма и модернизма начала 20 века с ориентацией на новые технологии и экологические стандарты 21 века Рисунки: 1. «Дом моей мечты» - перспектива. 2. Планы, фасад, разрез проекта.
I imagine that I will be able to build such a house for my family when I grow up and become a great architect. Today I am just learning and trying to design, draw convincingly, to feel the style, volume and compositional architectural solutions when designing a private house. When creating the project, I used the style and composition techniques of Le Corbusiers private villas. This is an exploited roof, an oval staircase that is the center of the house, paintings of the first floor hall in the modernist style, large windows, location on the site among the park landscaping, etc. My house is painted in the spirit of functionalism and modernism of the early 20th century with a focus on new technologies and environmental standards of the 21st century. Figures: 1. "My dream home" is a perspective. 2. Plans, facade, section of the project.
Размеры рисунка или рисунков (в см) / Sizes of the Drawing/Drawings (cm): 30 x 40 см
Drawing technique / Техника исполнения : paper, gel ink, pen, color pencil / бумага, перо, чернила, цветные карандаши
Год исполнения / Year of the Drawing: 2019







